
Begehbare
Trafostationen
- Startseite
- Leistungen
- Trafostationen
- Begehbare Trafostationen
Kompetenz aus drei Produktlinien
Unsere begehbaren Stationen
Im Verbund mit der GRÄPER-Gruppe erstellen wir begehbare Transformatorenstationen mit Leistungen von 50 bis 4.000 kVA, die wir durch unsere eigenen Fachleute planen, ausbauen und dann schlüsselfertig und mit kompletter Logistik auf die Baustelle liefern.
Unsere Serienstationen sind komplett fertig entwickelte Stationen für die Elektrizitätsverteilung, die wir besonders schnell ausliefern können. Das spart Ihnen viel Planungs- und Abstimmungsaufwand, da das Layout der Stationen bereits feststeht. So können Sie bereits frühzeitig in die Baustellenabstimmung gehen und andere Gewerke mit einbinden.
Unsere begehbaren Betonstationen aus den Produktlinien Professional und Individual können mit unterschiedlichen technischen Inhalten und für unterschiedliche Einsatzgebiete Elektrizitäts-, Gas- und Wasserverteilung, Telekommunikation, Energiespeicherung, Bahninfrastruktur und für Industrieanwendungen ausgestattet werden.
Sämtliche Anlagen können wir bis zu einer Größe von 18 x 5 Metern mit einer monolithisch gefertigten, öl- und wasserundurchlässigen Wanne fertigen. Darüber hinaus ist eine Kombination aus mehreren Stationen möglich. Nutzen Sie dazu unseren Online-Stationskonfigurator, der Sie in wenigen Schritten zur Ihrer individuellen Stationslösung führt.
Bei unseren begehbaren Stationen bieten wir drei Produktlinien:
Mit unserem System Serie bieten wir komplett vorgearbeitete Stations- und Bauwerkelösungen für unterschiedlichste Anwendungsgebiete vorwiegend in der Elektrizitätsverteilung. Die Anlagen sind von unseren Ingenieuren durchgeplant und auf den jeweiligen Einsatzzweck optimiert, z. B. als Schaltstation. Die Größen und Abmessungen sind dabei bereits festgelegt, so dass Sie nur noch die Farbe der Putzoberfläche sowie den Mittelspannungsanlagentyp und die Niederspannung festlegen müssen. Das GRÄPER System Serie besticht durch äußerst attraktive Lieferzeiten. In der Regel sind die begehbaren Stationen lagermäßig abrufbar. Ebenso sind Trafostände sowie Stationslösungen für weitere Anwendungsgebiete wie z. B. PoP / TK-Station verfügbar.
Größenübersicht
(in cm)
(in cm)

System Professional
Das GRÄPER-System Professional für Stationen von 3,6 bis 12 Meter Länge deckt fast alle Anforderungen ab und bietet eine enorme Vielfalt und Flexibilität für unterschiedlichste Anwendungen. Es ist lieferbar in fünf unterschiedlichen Breiten von 2,54 bis 3,63 m, mit lichten Raumhöhen von 2,45 und 2,60 m sowie mit drei wählbaren lichten Kellerhöhen von 0,68, 0,78 und 0,98 m. Der monolithisch gefertigte Keller sorgt dabei für Öldichtigkeit. Das System Professional ist mit allen Zwischenbodenarten (Betonboden, Systemboden etc.) lieferbar. Ebenso sind sämtliche Außengestaltungen sowie die Umsetzung als Sandwich-Station möglich. Die Türen und Lüftungsgitter sind für diese Baureihe optimal angepasst.

System individual
Mit dem System Individual haben Sie alle Freiheiten. Ausgehend von einer zentimetergenauen Planung unserer erfahrenen Ingenieure und Konstrukteure sind die unterschiedlichsten Dachformen, Außenoberflächen und Längen, Breiten und Höhen möglich. Ebenso planen und fertigen wir auch große individuelle Gebäudelösungen und setzen diese unter anderem in Modulbauweise oder als Einzelwandprojekte auf der Baustelle um. Die Betonstationen können wir bis zu einer Größe von 5 x 18 m mit einer monolithisch gefertigten, öl- und wasserundurchlässigen Wanne auf den Zentimeter genau fertigen. Je nach Wunsch ist auch eine Kombination aus mehreren Stationen möglich.
1061 cm × 650 cm
Trafostände
VK-Trafostand Typ G002
3-teiliger Fertigteil-Transformatorenstand mit 63 m³ Auffangvolumen.
1061 cm × 750 cm
Trafostände
VK-Trafostand Typ G004
3-teiliger Fertigteil-Transformatorenstand mit 49,5 m³ Auffangvolumen.
1061 cm × 800 cm
Trafostände
VK-Trafostand Typ G006
3-teiliger Fertigteil-Transformatorenstand mit 53 m³ Auffangvolumen.
1161 cm × 750 cm
Trafostände
VK-Trafostand Typ G005
3-teiliger Fertigteil-Transformatorenstand mit 55 m³ Auffangvolumen.
254 cm × 314 cm
Trafostationen
TS-R0-332 Typ: G001
Begehbare Trafostation mit max. 630 kVA.
254 cm × 360 cm
Trafostationen
TS-R0-378 Typ: G001
Begehbare Trafostation mit max. 1000 kVA.
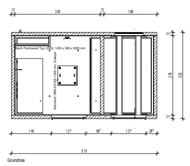
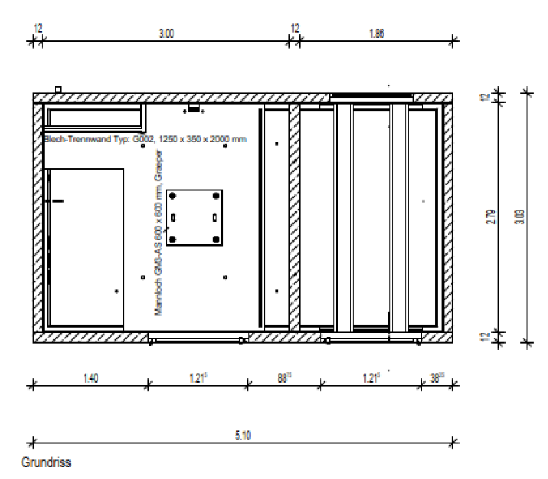
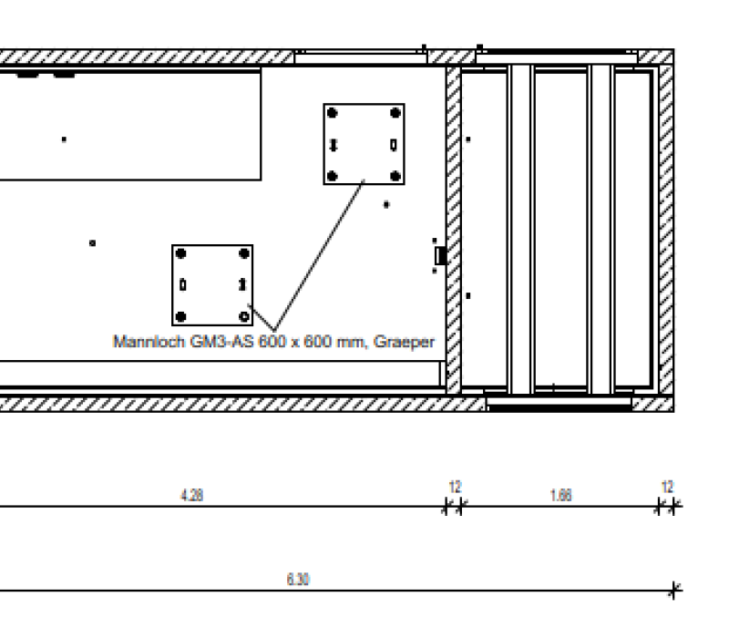
270 cm × 310 cm
Trafostationen
TS-BKS Typ: G001
Begehbare Transformatorenstation mit einem Transformatorenraum bis max. 630 kVA und einer Mittelspannungsgröße bis max. 155 cm
270 cm × 310 cm
Schaltstationen
SV-BKS Typ: G101
Begehbare Schaltstation mit Antennendurchführung und zusätzlichen Ankerschienen zur Montage von Fernwirktechnik
270 cm × 310 cm
Schaltstationen
SV-BKS Typ: G101
Begehbare Schaltstation mit Antennendurchführung und zusätzlichen Ankerschienen zur Montage von Fernwirktechnik
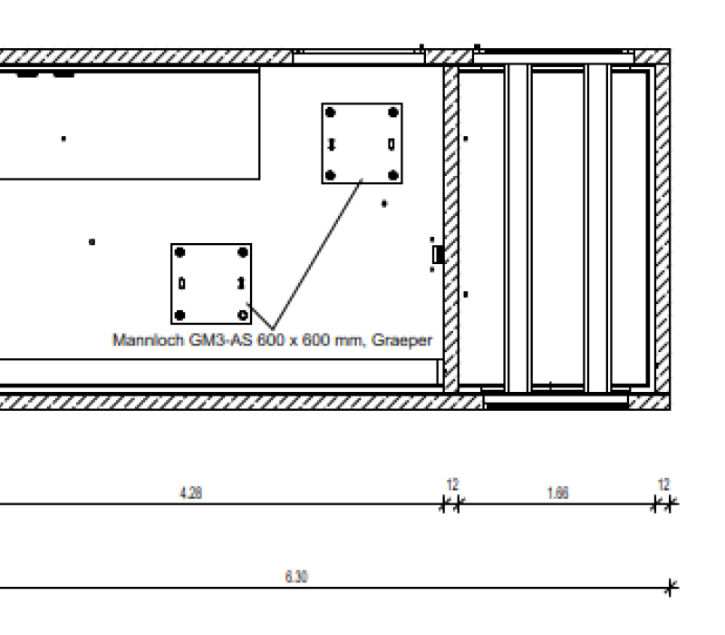
282 cm × 420 cm
Schaltstationen
SV-R1-438 Typ: G002
Begehbare Schaltstation mit stirnseitigem Zugang und einer Schaltfeldergröße bis max. 376 cm
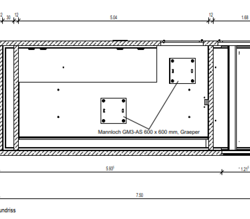
299 cm × 422 cm
POP/TK-Stationen
TK-Station 299_422
Kleine PoP / TK-Station mit einer Länge von 4,22 m
303 cm × 510 cm
Trafostationen
TS-R2-528 Typ: G001
Begehbare Trafostation mit max. 1000 kVA.
303 cm × 630 cm
Trafostationen
TS-R2-648 Typ: G001
Begehbare Trafostation mit max. 1600 kVA.
303 cm × 750 cm
Trafostationen
TS-R2-768 Typ: G001
Begehbare Trafostation mit max. 1600 kVA.
440 cm × 577 cm
POP/TK-Stationen
TK-Station 440_577
Mittelgroße PoP / TK-Station mit einer Länge von 5,77 m

Unser Leistungsangebot
Individuelle Lösungen
Sie finden bei den Kompaktstationen und begehbaren Stationen nicht das richtige? Dann kontaktieren Sie uns. Wir beraten Sie und finden sicherlich eine individuelle Lösung. Neben dem Anschluss ihrer Mittelspannungsversorgung kümmern wir uns dabei auch um Ihre Niederspannungsverteilung von 100 A bis 6.000 A. Unser weitergehendes Leistungsangebot finden Sie hier. Oder gestalten Sie doch online. Der Stationskonfigurator führt Sie in wenigen Schritten zu Ihrer kompakten oder begehbaren Transformatorenstation.

Kompaktstationen für jeden Zweck
Vielseitig
Kompaktstationen
Erfahren Sie mehr über unsere Kompaktstationen.













