
VK-Trafostand
Typ G002
- Startseite
- Leistungen
- Trafostationen
- Begehbare Trafostationen
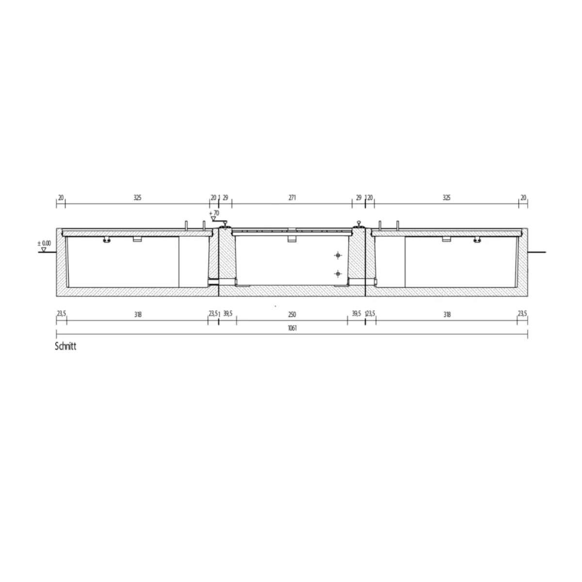
- 1061 cm × 650 cm
VK-Trafostand
Typ G002
3-teiliger Fertigteil-Transformatorenstand mit 63 m³ Auffangvolumen.
Auf einen Blick
- Auffangvolumen:
- 63 m³
- Wannenhöhe:
- 153 cm


