
SV-BKS
Typ G001
- Startseite
- Leistungen
- Trafostationen
- Begehbare Trafostationen
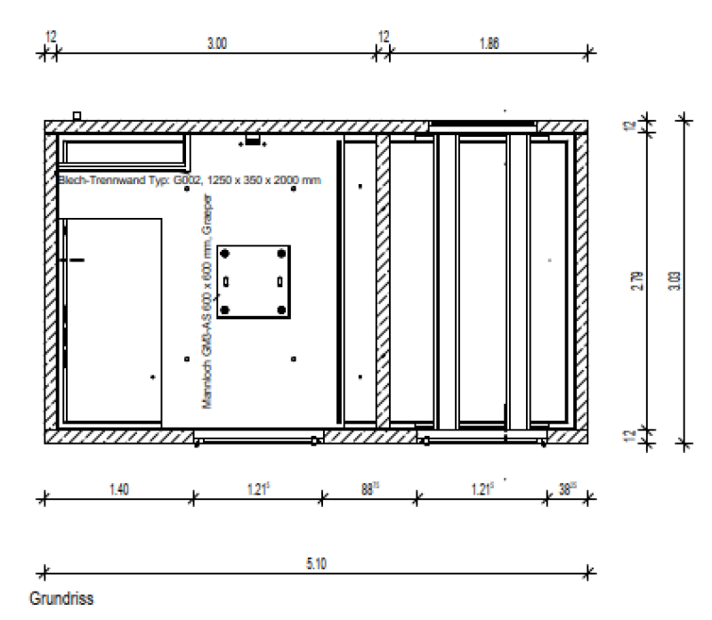
- 303 cm × 510 cm
Begehbare Trafostation mit einer Leistung von max. 1000 kVA.
Auf einen Blick
- Stationstyp:
- Trafostation
- Stationsmaße:
- 510 x 303 x 361 cm
- Anzahl der Räume:
- 2
- MSA:
- max. 5 Felder gem. DIN EN 62271-202
max. 4 Felder gem. Ableitungsnorm DIN EN 62271-312*
/ 178 x 90 x 220 cm - zusätzliche Wandmontagefläche:
- 275 x 220 cm
- Anhebeanker Dach:
- 4 x RD 30
- Anhebeanker Station:
- 4 x 20 t KK
*) Störlichtbogengeprüft bzw. Ableitung von durchgeführten Störlichtbogenprüfungen möglich. Je nach Schaltanlagenhersteller kann es zu Unterschieden bei der der maximal möglichen Feldanzahl kommen. Die genannte Feldanzahl gilt als Richtwert.


